Il misuratore EG40 è uno strumento di misura volumetrica a pareti deformabili per gas naturale, gas manifatturato, GPL e gas tecnici, ad utilizzo industriale. La progettazione e realizzazione avviene utilizzando i più elevati standard, ed in conformità alle norme EN1359 ed alla Direttiva MID.
La precisone ed accuratezza della misura viene garantita dal processo di controllo produttivo e da un sistema di calibrazione automatizzato, applicato presso il Laboratorio Metrologico interno sul 100% degli esemplari prodotti.
La qualità dei componenti plastici e metallici utilizzati permette ai misuratori un'elevata sensibilità, anche con un flusso minimo di gas, ed ottime performance nel tempo.
L'accuratezza ed affidabilità nel tempo della misura è garantita dal consolidato principio meccanico della misura che avviene con sistema a membrane e cassetti.
EG40 è la versione "elettronica" del misuratore tradizionale meccanico di Sacofgas, al quale è stato integrato un modulo elettronico con le seguenti caratteristiche e funzioni:
Il misuratore EG40 effettua la conversione (di tipo PT) del volume alle condizioni di riferimento standard (condizioni base).
La protezione dei dati e l'inviolabilità dei parametri di programmazione è assicurata sia da interruttori sigillabili che da password programmabili.
I misuratori sono alimentati a batteria.
Riferimenti normativi
Comunicazione dati
Il misuratore EG40 è prodotto con tecnologia multicamera; tre complessi metrologici da 6 dm3, fasati attraverso un apposito cinematismo, lavorano in parallelo ottimizzando stabilità ed accuratezza di misura.
La differenza di pressione tra ingresso e uscita del contatore induce il riempimento e svuotamento ciclico delle camere di misura attraverso il movimento alternato delle membrane deformabili.
Per mezzo del cinematismo di misura, composto da valvole a cassetto con accoppiamento biella-manovella, ed il modulo di trasduzione elettronico, il moto viene convertito in segnali elettrici impulsivi trasmessi alla scheda metrologica.
Sul modulo di trasduzione è installato il sensore di temperatura per la correzione dei volumi ed è equipaggiato con un sistema efficace di rilevazione frodi.
Sul corpo metallico è inoltre installato un sensore di pressione che permette la compensazione dei volumi misurati.
La conversione del volume misurato avviene utilizzando un algoritmo che necessita le seguenti variabili:
Il dispositivo calcola il grado di compressibilità del gas utilizzando metodi standard o un valore costante ed infine fornisce il valore del volume convertito (in standard m3).
| Temperatura Operativa | -25 °C / + 55 °C | ||
| Temperatura di stoccaggio | -25 °C / + 70 °C | ||
| Temperatura condizione di base | 15 °C | ||
| Classe di precisione | 1,5 | ||
| Grado di protezione | IP66 | ||
| Classe meccanica | M2 | ||
| Ambiente elettromagnetico | E2 | ||
| Connessione standard (Norma ISO 228-1) | DN65 Flangiato - DN80 Flangiato | ||
| Volume ciclico | 18 dm3 | ||
| Classe | G40 | ||
| Pressione massima di esercizio | 500 mbar | ||
| Portata minima (m3/h) | 0,40 | ||
| Portata massima (m3/h) | 65 | ||
| Distanza interasse | 430 mm - 510 mm | ||
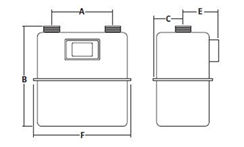
| Dimensioni (mm) | A 430 - 510 B 378 C 186 E 245 F 688 |
|
|
Le Dati tecnici sono indicative e possono subire variazioni.