Gas Meter

EG65

EG65

Why choose it

​The EG65 meter is a deformable wall volumetric measuring instrument for natural gas, manufactured gas, LPG and technical gases, for industrial use. It is designed and built according to the highest standards, and in compliance with EN1359 and the MID directive.  Measurement precision and accuracy are guaranteed by the production control process and by an automated calibration system, which is used at the internal Metrological Laboratory on 100% of the meters produced.

The quality of the plastic and metal components renders the meters highly sensitive, even with a minimum gas flow, and ensures excellent performance over time.

The accuracy and reliability of the measurement over time is guaranteed by the consolidated mechanical principle of measurement itself, which is performed using a membrane and spool valve system.

EG65 is the "electronic" version of Sacofgas’s traditional mechanical meter, which has been integrated with an electronic module having the following characteristics and functions:

  • LCD display with multi-level menu
  • Logging of consumption values  
  • Remote transmission of the readings (compensated by temperature and pressure) 

EG65 meter performs the PT type volume conversion at standard reference conditions (basic conditions).

Data protection and the security of programming parameters are ensured by both sealable switches and programmable passwords.

The meters are battery powered.

Normative requirements

  • ATEX 2014/34/EU Directive
  • MID 2014/32/EU Directive
  • Standard EN 1359:2017
  • WELMEC 7.2

Characteristics

  1. ​Power supply: N 1 3,6 VDV lithium batteries (estimated battery life > 8 years under standard conditions) 
  2. Casing available in galvanized steel sheet painted with polyester pain Electronic casing in polycarbonate + ABS
  3. Equipped with mechanical anti-return device    
  4. N° 2 digital outputs (impulsive for correct and programmable binary volume repetition)    
  5. High measurement stability    
  6. Low noise and pressure absorption    
  7. Temperature measurement range -25 °C/+55 °C
  8. Pressure measurement range 0,8/1,5 bar   
  9. Alphanumeric LCD three lines 16 characters display    
  10. Integrated anti-tampering protection
  11. 6 button keypad for setting basic parameters    
  12. SGERG-88 compressibility formula     
  13. ATEX Zone 1----II 2(1)G Ex ib [Ex ia Ga] T3 IIB T3 Gb -25 ≤ T amb ≤ 70 °C
  14. Membrane in synthetic material   
  15. The meter with galvanized steel sheet casing guarantees excellent corrosion protection and is resistant to high temperatures "T" according to EN1359:2017    
  16. Device according to UNI TS 11291-3 and UNI TS 11291-5D.

Data Communication

  • GPRS communication (point-to-point)    
  • Local communication via ZVEI infrared optical port according to EN 62056-21

Functionality

​The pressure difference between the inlet and outlet of the meter results in the cyclic filling and emptying of the measuring chambers through the alternating movement of the deformable membranes.

The motion is converted into electrical pulse signals via the kinematic measuring system, consisting of spool valves with a connecting crank-rod coupling, and an electronic transduction module, the motion is converted into impulsive electrical signals transmitted to the metrology board.

The transduction module has a temperature sensor for volume correction and is equipped with an effective fraud detection system.

A pressure sensor is also installed on the metal body to compensate the measured volumes.

The measured volume is converted using an algorithm that requires the following variables:

  • The volume of gas acquired by the transduction module. 
  • Temperature: measured by an integrated sensor.
  • Gas pressure: measured by an integrated digital transducer.

The device calculates the gas compressibility ratio using standard methods or a constant value, and then provides the value of the converted volume (in standard m3)


Technical data EG65

Operating temperature-25 °C / + 55 °C
Storage temperature-25 °C / + 70 °C
Basic conditions temperature15 °C
Accuracy class1,5
Degree of protectionIP66
Mechanical ClassM2
Electromagnetic environmentE2
Standard connection
(According to ISO 228-1)
DN80 Flanged
Cyclic volume18 dm3
ClassG65
Max working pressure500 mbar
Min flow rate (m3/h)0,65
Max flow rate (m3/h)100
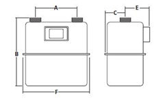
Inter-axes distance500 mm
Dimensions (mm) A 500
B 378
C 186
E 245
F 688
Misure EG65

Features and specifications approximate and subject to change.